T3 GRANDE TERRASSE – MARSEILLE 13001
Vendu
281 000 €
Marseille
À Vendre









Voir les photos
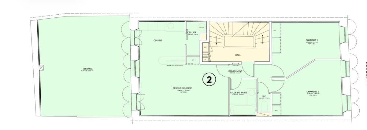
L'Agence Étoile vous propose à la vente un appartement de type 3 situé au 1er étage d'un immeuble idéalement placé dans le 13001.
Ce bien se compose d'un séjour lumineux avec cuisine ouverte, offrant un espace de vie convivial et fonctionnel. L'ensemble donne accès à une grande terrasse de 40 m2 exposée sud ouest, véritable atout, idéale pour profiter des beaux jours et créer un espace extérieur rare en centre-ville.
L'appartement est en bon état général et ne nécessite pas de travaux immédiats. Il conviendra parfaitement à un couple, une petite famille ou un investisseur recherchant un bien avec extérieur.
Une copropriété sera prochainement créée.
Bien rare sur le secteur, à visiter sans tarder.
Pour plus d'informations ou organiser une visite, contactez M.PERSIA au O626341486.
Les informations sur les risques auxquels ce bien est exposé sont disponibles sur le site Géorisques : www.georisques.gouv.fr
Ce bien se compose d'un séjour lumineux avec cuisine ouverte, offrant un espace de vie convivial et fonctionnel. L'ensemble donne accès à une grande terrasse de 40 m2 exposée sud ouest, véritable atout, idéale pour profiter des beaux jours et créer un espace extérieur rare en centre-ville.
L'appartement est en bon état général et ne nécessite pas de travaux immédiats. Il conviendra parfaitement à un couple, une petite famille ou un investisseur recherchant un bien avec extérieur.
Une copropriété sera prochainement créée.
Bien rare sur le secteur, à visiter sans tarder.
Pour plus d'informations ou organiser une visite, contactez M.PERSIA au O626341486.
Les informations sur les risques auxquels ce bien est exposé sont disponibles sur le site Géorisques : www.georisques.gouv.fr
Caractéristiques
66.6 m2
3
1er
1
D (181)
B (6)
Plus de caractéristiques
Nombre de chambres : 2
Cuisine : Américaine
Ascenceur : Non
Cave : Non
Terrasse : Oui
Nombre de salles de bains : 1
Détails de l'agence immobilière

MARSEILLE 8E - Agence Etoile Mermoz
166 Rue Jean Mermoz, 13008 Marseille, France
+33 4 91 29 04 04
