NEW 3-ROOM APARTMENT – SAINT-OUEN
Sold
486 000 €
Saint-ouen-sur-seine
Neuf


See the pictures
Delivery: 1st quarter 2023 - You will benefit from a peaceful environment in a village spirit, offering local shops and amenities, at the gateway to the capital. From studios to 5-room duplexes with balconies, terraces, or gardens, the residence is built on six floors around two magnificent interior and landscaped gardens. Served by a bus line at the foot of the building and a few minutes from metro line 13 and the future line 14, this new real estate development is ideally located to facilitate your daily mobility.
Features
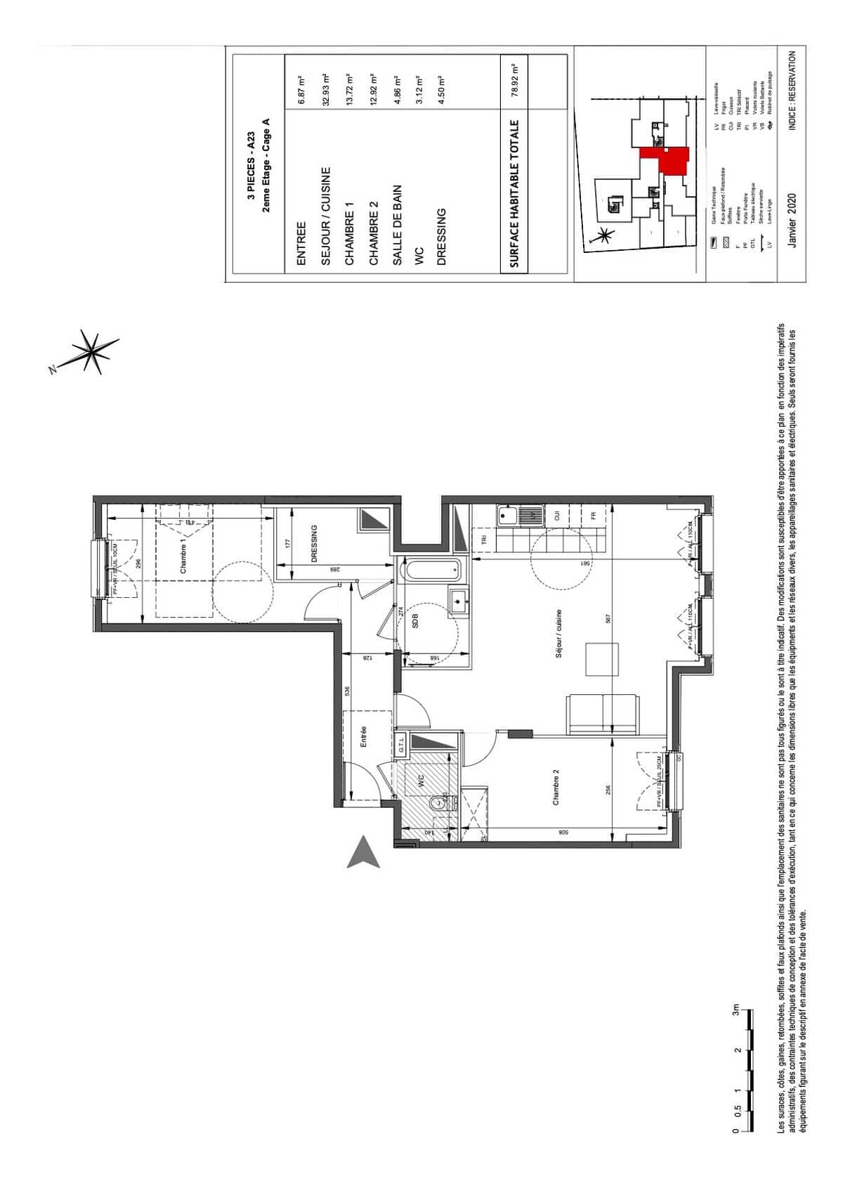
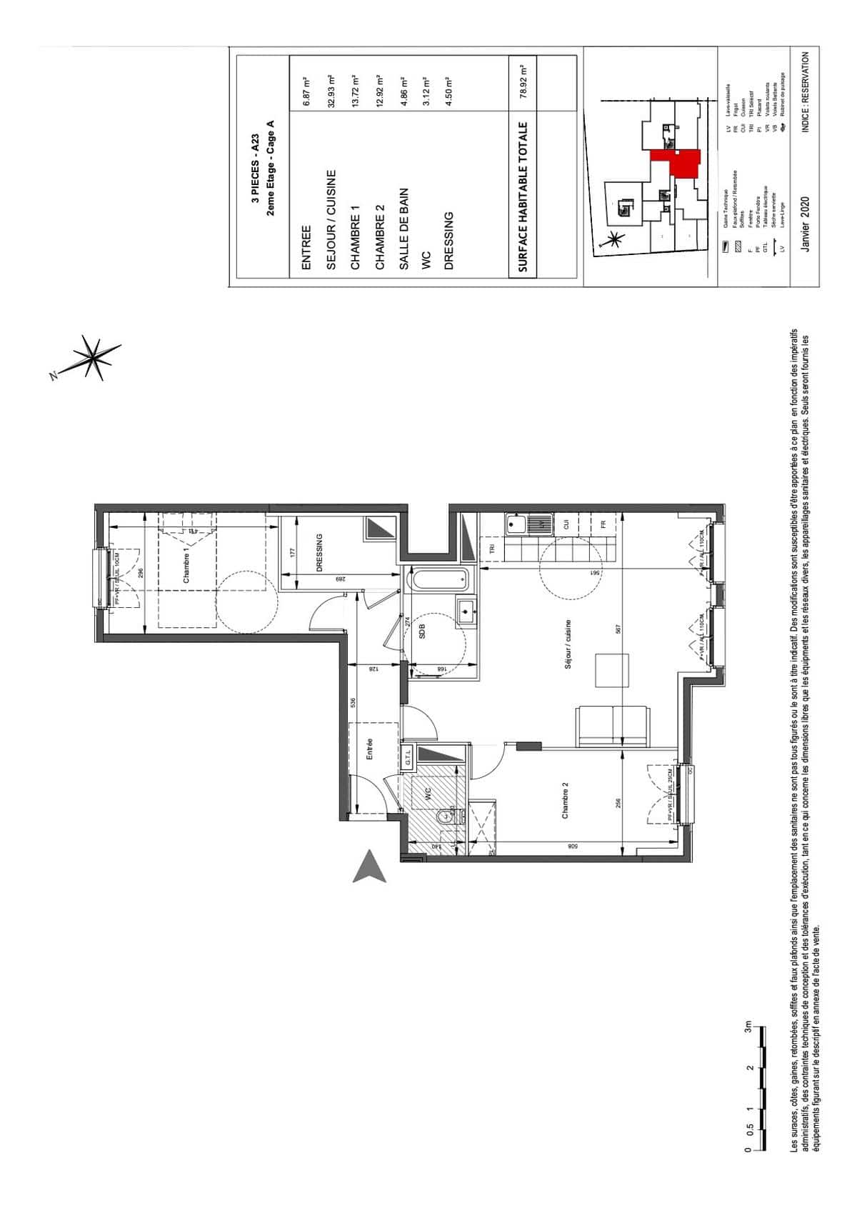
78.92 m2
Non meublé
3
2nd
1
N.C.
N.C.
More features
Number of bedrooms : 2
Kitchen : Aucune
Garage : 1
Number of bathrooms : 1


Real estate agency details
