PRESTIGIOUS 4-ROOM PENTHOUSE – MERIBEL
Sold
 
									3 878 428 €
Meribel les allues
Neuf



See the pictures
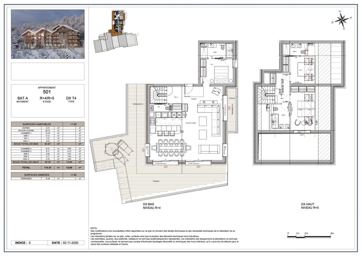
 Delivery: Q1 2024 - A true haven of peace, Méribel is a residential alpine village that has preserved its original natural setting. Nestled in the heart of the exceptional 3 Valleys ski area, Méribel is a valley whose values are etched in wood and stone, complemented by a wealth of sporting, cultural, and outdoor activities to enjoy in a magical setting. Discover this new real estate development in a unique location. This new building will comprise 22 apartments and include shops.
  
																Features
113.31 m2
4
4th
1
N.C.
N.C.
More features
- Number of bedrooms : 3 
- Kitchen : Aucune 
- Cellar : Yes 
- Terrace : Yes 
- Garage : 2 
- Number of bathrooms : 3 
 
											 
										Real estate agency details

