APPARTEMENT NEUF 2 PIECES – SAINT-OUEN
Vendu
368 000 €
Saint-ouen-sur-seine
Neuf


Voir les photos
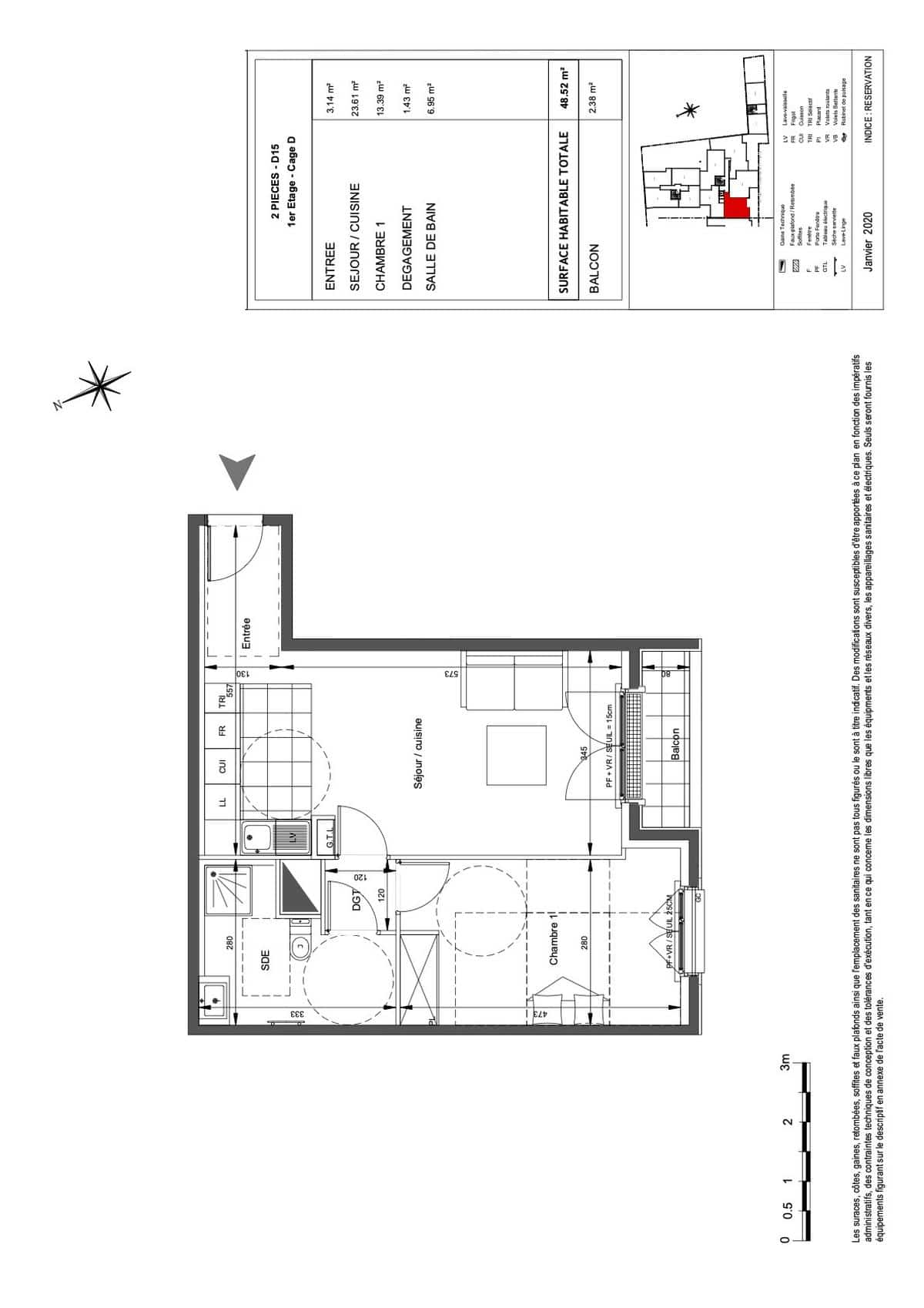
Livraison : 1er trimestre 2023 - Vous bénéficierez d'un environnement paisible dans un esprit village, offrant commerces et équipements de proximité, aux portes de la capitale. Du studio au 5 pièces duplex avec balcon, terrasse ou jardin, la résidence s'érige sur six étages autour de deux magnifiques jardins intérieurs et paysagers. Desservi par une ligne de bus en pied d'immeuble et à quelques minutes de la ligne 13 et de la future ligne 14 du métro, ce programme immobilier neuf est idéalement situé pour faciliter votre mobilité au quotidien.
Caractéristiques
48.52 m2
Non meublé
2
1er
N.C.
N.C.
Plus de caractéristiques
Nombre de chambres : 1
Cuisine : Aucune
Balcon : 1 (2 m2)
Nombre de salles de bains : 1
Détails de l'agence immobilière

